Price £5,500 pcm Available

Price £5,500 pcm - Available 08/05/2026 - Unfurnished


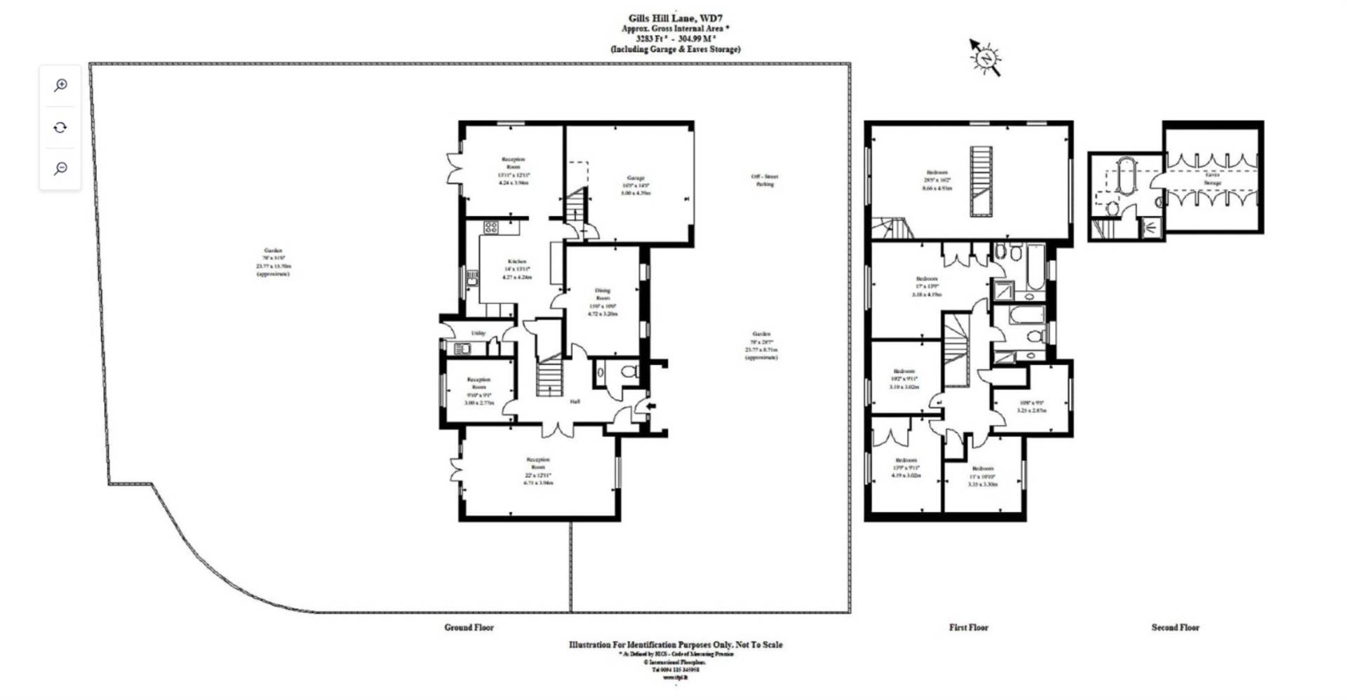
  • 5 bed detached residence
  • 4 reception rooms
  • 3 bathrooms (1 en-suite)
  • large kitchen/breakfast room
  • separate utility room
  • unfurnished
  • integral double garage
  • garden
  • NEW CARPETS
  • NEWLY DECORATED THROUGHOUT

** NEWLY DECORATED THROUGHOUT / NEW CARPETS TO BE INSTALLED** Martin Allsuch & Co. are pleased to offer for rent this detached and spacious 5 bedroom house on one of Radlett's premier roads.

This property offer spacious living throughout, with high quality fixtures and fittings and neutral décor.

The ground floor consists of a double reception room with French doors leading out onto the garden terrace, a separate dining room, a visitors cloakroom and toilet, spacious kitchen diner and TV room with access to a spacious first floor annex with a dedicated bathroom.

The first floor benefits from the master bedroom with full en suite bathroom, all other bedrooms, and family bathroom.

Additionally, other features include integral garage and off street parking for up to 4 cars.

The property offers quiet living, set back from the main routes through Radlett and a large low maintenance garden and terrace which compliments the property.

This prestigious home is conveniently located for all of the local amenities, offering excellent transport facilities with links to London and the north via the M1, M25 and A41 all located nearby.

Sporting and recreational facilities are incredibly well catered for in the area with golf clubs situated particularly close by, together with sailing at Aldenham Country park, together with the David Lloyd and Village fitness centers. There are a number of excellent private and state schools in the vicinity including Haberdashers Askes, North London Collegiate and St Margaret's.

EPC Rating: C.
Council Tax Band: H



Deposit: £6,346.15

Notice
All photographs are provided for guidance only.

The following are permitted payments which we may request from you:

a) The rent
b) A refundable tenancy deposit (reserved for any damages or defaults on the part of the tenant) capped at no more than five weeks' rent where the annual rent is less than £50,000, or six weeks' rent where the total annual rent is £50,000 or above
c) A refundable holding deposit (to reserve a property) capped at no more than one week's rent
d) Payments to change the tenancy when requested by the tenant, capped at £50, or reasonable costs incurred if higher
e) Payments associated with early termination of the tenancy, when requested by the tenant
f) Payments in respect of utilities, communication services, TV licence and council tax; and
g) A default fee for late payment of rent and replacement of a lost key/security device, where required under a tenancy agreement

Please call us if you wish to discuss this further.
EER Chart

The Energy-Efficiency Rating is a measure of a home's overall efficiency. The higher the rating, the more energy-efficient the home is, and the lower the fuel bills are likely to be.

Utility Supply Type
Electric Mains Supply
Gas Mains Supply
Water Mains Supply
Sewerage None
Broadband Cable
Telephone Landline

Other Items Description
Heating Gas Central Heating
Garden/Outside Space Yes
Parking Yes
Garage Yes

Broadband Coverage Highest Available Download Speed Highest Available Upload Speed
Standard 17 Mbps 1 Mbps
Superfast 80 Mbps 20 Mbps
Ultrafast Not Available Not Available

Mobile Coverage Indoor Voice Indoor Data Outdoor Voice Outdoor Data
EE Enhanced Enhanced Enhanced Enhanced
Three Likely Likely Enhanced Enhanced
O2 Enhanced Likely Enhanced Enhanced
Vodafone Likely Likely Enhanced Enhanced

Broadband and Mobile coverage information supplied by Ofcom.


marker icon